スマートユニテの展示場 - ユニテハウスの規格住宅スマートユニテ(SMART UNITE)
ankara escort

スマートユニテ事例集

GALLERY

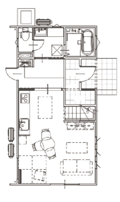
25 タイプ事例
25 タイプ事例
  • DATA
  • 1F面積 39.74㎡(12.02坪)
  • 2F面積 41.40㎡(12.52坪)
  • 敷地面積 185.36㎡(56.07坪)
  • 延床面積 81.14㎡(24.54坪)

山形県山形市平清水に建てられたスマートユニテ。
25坪タイプのスマートユニテは、コンパクトなのに3LDKの居住スペースを確保。効率の良いレイアウトが暮らしやすさと住まう人に満足感を与えます。
また、建坪はなんと約12坪!広い敷地が無くても駐車場、庭のスペースを確保出来ます。
つまり、広い土地を購入する必要無し! これにより建築予算全体を抑えることができ、家を建てた後の暮らしや家族での様々な楽しみを我慢することなく豊かな人生を送れます。
私たちが家をつくるのいちばんの目的は「家族の幸せ」なのです。

IMAGE

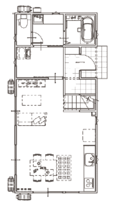
27 タイプ事例
27 タイプ事例
  • DATA
  • 1F面積 43.88㎡(13.27坪)
  • 2F面積 45.45㎡(13.78坪)
  • 敷地面積 439.42㎡(132.9坪)
  • 延床面積 89.33㎡(27.05坪)

山形県東根市蟹沢に建てられたスマートユニテ。
132.9坪のスペースに27坪タイプのスマートユニテを配置し、残りをガーデンスペースとして大胆に使用しました。
広々としたお庭にはまるでトムソーヤに出てくるような小屋を置き、お家の中の「日常」と広々としたお庭の「非日常」が融合した空間となっております。
家の外に出ることにナーバスな時代には、非日常の空間を楽しめむことのできる我が家が必要なのかもしれません。
四角い箱型のスマートユニテは無駄な空間を造らないので、27坪タイプの空間でも十分な生活空間を体感できます。
私たちが家をつくるのいちばんの目的は「家族の幸せ」なのです。

IMAGE

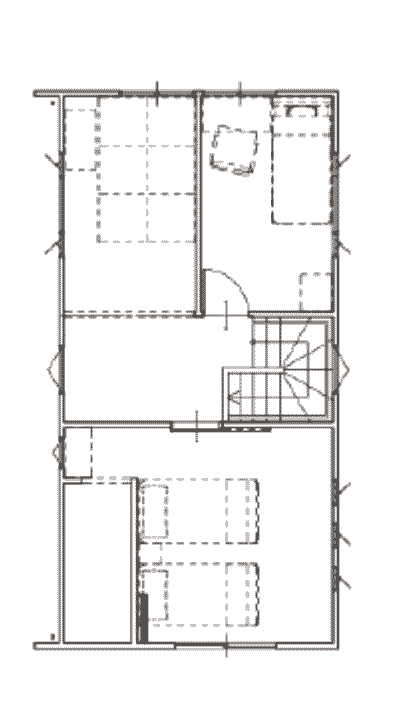
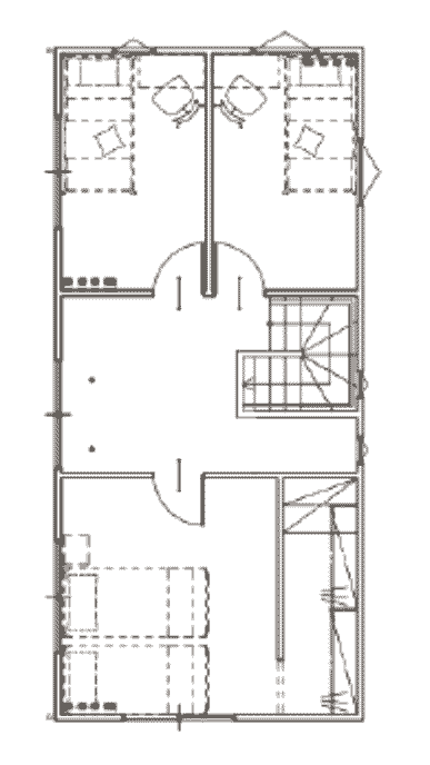
30 タイプ事例
30 タイプ事例
  • DATA
  • 1F面積 48.02㎡(14.53坪)
  • 2F面積 49.68㎡(15.03坪)
  • 敷地面積 122.59㎡(37.08坪)
  • 延床面積 97.70㎡(29.56坪)

山形県山形市平清水に建てられたガレージ付スマートユニテ。
ビルトインガレージは日々の暮らしを快適にしてくれるほか、DIYなどの趣味を楽しむスペースとしても活躍。
2階に配したLDKは壁のない大空間!ひとつの大きな箱を家具で自由に間仕切れる仕様ですので、住んでからも将来のライフスタイルの変化に対応します。ウッドデッキのアウトドアリビングの楽しみ方も自由自在。天気のいい日はここでランチもOK。笑顔あふれる毎日を約束してくれることでしょう。

IMAGE